HOME
PROJECTS
FIRM
WHY AN ARCHITECT?
STUART EMMONS
CONTACT
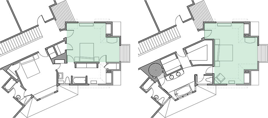
Arthur Master Suite Plans
BATH/CLOSET
MASTER BEDROOM
BEDROOM 5
HIS CLOSET
HER CLOSET
WC
MASTER BATH
CIRCULAR SHOWER
PREVIOUS FLOOR PLAN
NEW FLOOR PLAN